![]() |
ラルゴ徳庵

アパート
ラルゴ徳庵
木造
令和7年8月
34.38㎡
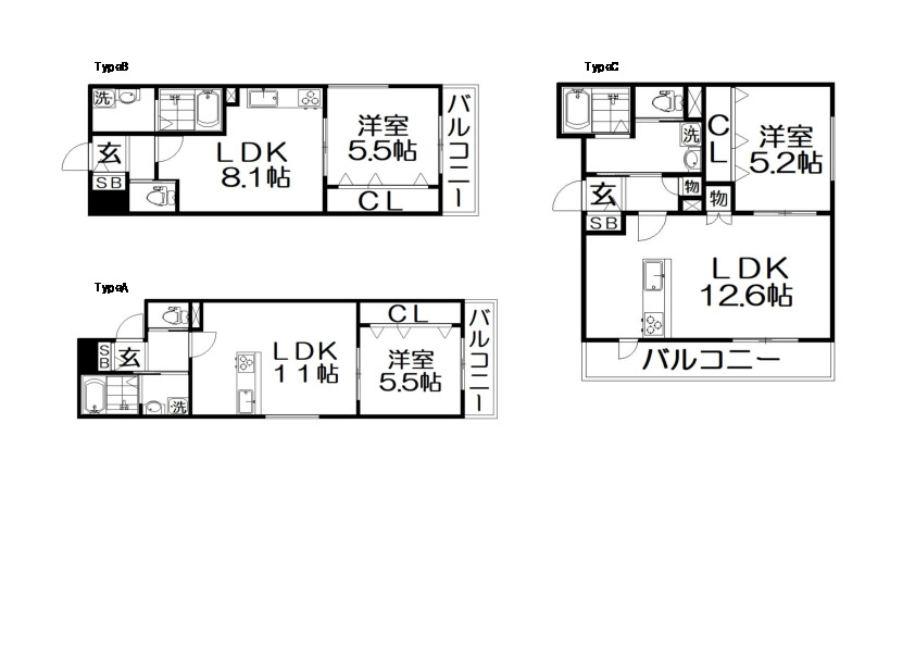
1LDK
都市ガス/エアコン完備/室内洗濯機置場/システムキッチン/浴室乾燥機/追炊機能/温水洗浄便座/バス・トイレ別/TVモニタ―付インタ―フォン/オートロック/宅配BOX/インターネット無料/防犯カメラ
なし
あり
不可
--
--
保険会社
火災保険等 指定
--
大阪府東大阪市徳庵本町7-7
片町線「徳庵」徒歩4分
片町線「鴻池新田」徒歩23分
長堀鶴見線「横堤」徒歩25分
73,000円~
共益費 5,000円
--
--
--